Rok 1913. Na terenie ówczesnych wyścigów konnych, przy dzisiejszej ulicy Przemysłowej, wzbił się w powietrze zbudowany przez uczniów piotrkowskiego gimnazjum szybowiec. Wydarzenie to było początkiem przyszłej historii piotrkowskiego lotnictwa. Po stu latach, w roku 2013, w tym samym miejscu, w ramach pierwszej edycji Międzynarodowej Wystawy Lotniczej FLY FEST świętowaliśmy 100-lecie lotnictwa na Ziemi Piotrkowskiej.

.
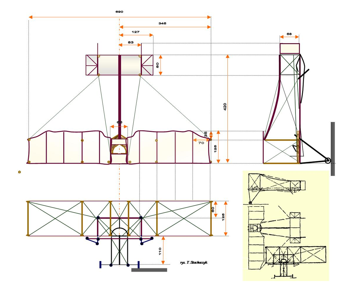
Pierwszy lot na terenie wyścigów konnych (obecnie teren lotniska Aeroklubu Ziemi Piotrkowskiej) miał miejsce w czerwcu 1913 roku. Szybowiec zbudowany przez uczniów czwartej klasy piotrkowskiego gimnazjum na podstawie opisu zamieszczonego w broszurze inż. M. Króla "Jak zbudować szybowiec i wykonywać na nim wzloty" pilotował jeden z młodych konstruktorów - Jan Strahler. Próby wymagały zgody władz carskich i były nadzorowane przez dwóch policjantów. Dotychczasowe doświadczenia "lotnicze" gimnazjalistów ograniczały się do załogowych lotów latawcowych (skład załogi stanowił zwykle jeden kot z "sąsiedztwa"). Szybowiec był holowany przez sześciu kozaków na koniach. Budowa szybowca pochłonęła ponad dwa lata, bambus będący podstawą konstrukcji ściągnięto aż z Japonii.

Konstrukcje szybowcowe z tego okresu zazwyczaj nie miały sterów, szybowiec był sterowany poprzez zmianę położenia środka ciężkości, co uzyskiwano dzięki odpowiedniemu wychyleniu ciała pilota (podwieszonemu zwykle na lince). Zamiast podwozia głównego używano głównie nóg pilota. Piotrkowski szybowiec różnił się od swojego pierwowzoru.Przede wszystkim był większy, przez co uzyskano teoretycznie jego większy udźwig. Ponadto uczniowie zastosowali proste podwozie z kółkami i wyposażyli go w stery kierunku oraz wysokości. Wg opisu inż. Króla zbudowano na polskich terenach łącznie trzy konstrukcje: szybowiec uczniów gimnazjum im. Chrzanowskiego w Warszawie (1912), szybowiec Babińskiego - również w Warszawie (1913) i opisywany szybowiec uczniów gimnazjum z Piotrkowa Trybunalskiego (1913).
Ulica Przemysłowa w Piotrkowie Trybunalskim, przy której położone jest nasze lotnisko zawdzięcza swoją nazwę funkcjonującym wzdłuż niej kiedyś zakładom przemysłowym, w tym nieistniejącej już dziś hucie szkła Feniks. Czy w przyszłości nie mogłaby nosić imienia pierwszego piotrkowskiego lotnika Jana Strahlera?

Komentarze 4